Vedspis Clasic SG-90 är en effektiv, modern och användarvänlig vedspis med en stor ugn som kan användas för uppvärmning i form av strålningsvärme, matlagning och bakning.
Vedspis Clasic SG-90 har effektiv förbränning av rökgaser tack vare en
välisolerad eldstad som är isolerad med eldfast material och primär- och sekundärförbränning.
* Anslutning till skorsten, bak och sida
En vänster vedspis har skorstensanslutning vänster bak och på
vänster sida närmast bak samt eldstad till höger(sett framifrån)
En höger vedspis har skorstensanslutning höger bak och på
höger sida närmast bak samt eldstad till vänster(sett framifrån)
* En stålhäll med en tjocklek på 8mm ligger på en fibertätning
för matlagning.
Färgalternativ:
.jpg)
Inox Mat(borstad rostfri plåt)
.jpg)
PC-2(Bordeaux)
.png)
PC-3(Cream)
.jpg)
PC-7(Anthracite Grey)
Vedspis Clasic SG-90-tekniska data:
| Nominell effekt,kW |
8,6 |
| Verkningsgrad,% |
83,6 |
| Vikt,kg |
170 |
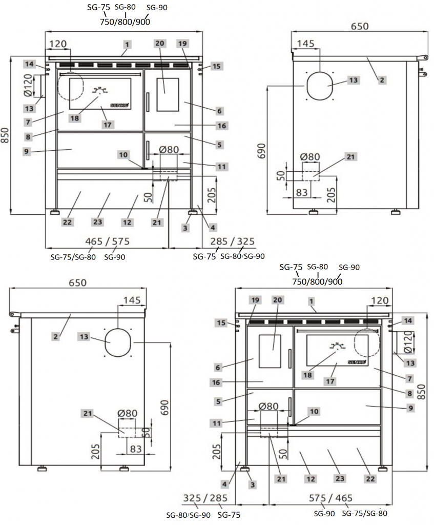
| Mått,mm |
B900*L650*H850/920(justerbar) |
| Mått kokplatta,mm |
B787*L480, tjocklek 8mm |
| Mått ugn,mm |
B400*L230*H440 |
| Drag,Pa |
12 |
| Primärluft |
Manuell |
| Sekundärluft |
Manuell |
| Påfyllningslucka |
keramiskt glas |
| Tillverkad enligt CE standard |
EN12815 |
| Färg |
Inox Mat(borstad rostfri),
PC-2,PC-3 och PC-7 |
| Skorstensanslutning,mm |
D120 |
| Friskluftsanslutning,mm |
D80 |
Energieffektivitetsklass: A+
Prestandadeklaration vedspis Clasic SG-90
Bruksanvisning vedspis Clasic SG